TIN TỨC
Sở hữu tọa độ đắc địa, thiết kế thông minh cùng chuỗi tiện ích hiện đại, Park 3 Vinhomes Central Park được nhiều khách hàng lựa chọn làm nơi xây dựng tổ ấm của gia đình.
Các thông tin tổng quan về tòa Park 3 Vinhomes Central Park bao gồm:
Tòa căn hộ Park 3 được chủ đầu tư quy hoạch trong khu đô thị Vinhomes Central Park, tọa lạc ở số 208 đường Nguyễn Hữu Cảnh, phường 22, quận Bình Thạnh, Thành phố Hồ Chí Minh.
Hướng view của The Park 3 Vinhomes Central Park như sau:
Tòa Park 3 Vinhomes Central Park có chiều cao 43 tầng nổi và 2 tầng hầm giữ xe. Layout Park 3 Vinhomes Central Park hình chữ I, mở ra tầm view thông thoáng với những góc nhìn tuyệt đẹp.

Mặt bằng tòa Park 3 Vinhomes Central Park
Mặt bằng Park 3 Vinhomes Central Park có mật độ xây dựng 13 căn/ sàn, cung cấp 523 căn hộ cao cấp. Bên cạnh đó, chủ đầu tư trang bị cho tòa nhà 13 thang máy, trong đó có 3 thang bộ và 10 thang máy hiện đại phục vụ quá trình di chuyển hằng ngày của cư dân.
Các căn hộ được quy hoạch với diện tích rộng rãi, đem đến không gian sống tiện nghi và đẳng cấp. Bên cạnh loại hình căn hộ, Park 3 Vinhomes Central Park còn sở hữu 12 căn nhà phố thương mại ở khu vực tầng trệt và tầng 1.
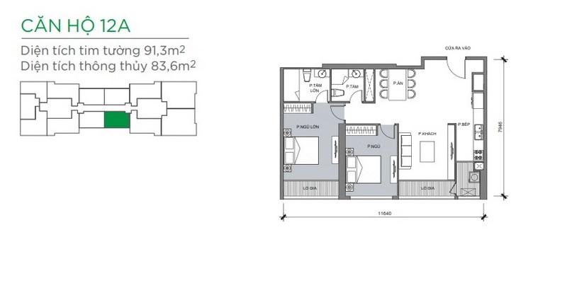
Các căn hộ tòa Park 3 Vinhomes Central Park đều được lắp đặt hệ thống kính Low-E với khả năng truyền sáng và cản nhiệt tốt, giúp hạn chế tia cực tím và ổn định nhiệt độ môi trường trong nhà. Đặc điểm của mỗi loại hình căn hộ tại đây như sau:
Diện tích căn hộ 2PN:
Mặt bằng căn hộ bao gồm 2 phòng ngủ, 1 phòng khách, 1 phòng bếp, 1-2 nhà vệ sinh và 1-2 ban công. Loại hình căn hộ này thích hợp với các gia đình có từ 3-4 thành viên.

Mặt bằng căn hộ 2PN tòa Park 3 Vinhomes Central Park
Diện tích căn hộ 3PN tại tòa Park 3 Vinhomes Central như sau:
Cấu trúc căn hộ 3PN bao gồm 3 phòng ngủ, 2 phòng vệ sinh, 2 ban công, 1 phòng khách và 1 phòng bếp. Với diện tích rộng rãi, căn hộ là sự lựa chọn hoàn hảo của các gia đình có từ 6 – 7 thành viên.

Mặt bằng căn hộ 3PN tòa Park 3 Vinhomes Central Park
Diện tích căn hộ 4PN tại tòa Park 3 Vinhomes Central như sau:
Thiết kế căn hộ 4PN có khả năng đáp ứng đầy đủ nhu cầu sử dụng hằng ngày của các gia đình có đông thế hệ cùng sinh sống. Không chỉ mang đến không gian sinh hoạt chung thoáng mát, rộng rãi, căn hộ còn đảm bảo tính riêng tư cần thiết cho mỗi thành viên trong gia đình.

Mặt bằng căn hộ 4PN tòa Park 3 Vinhomes Central Park
Vị Trí: 720A Điện Biên Phủ, Phường 22, Quận Bình Thạnh, TP. Hồ Chí Minh, Việt Nam
Website: https://vinhomescentralparktancang.vn/
Trên Đây là Bài Viết của Vinhomes Central Park Tân Cảng, Mong qua bài viết này sẽ cung cấp nhiều thông tin đến với quý Khách.